金龙智能制造产业园
招商手册
【项目简介】长沙北·临港芯·10万方智能制造示范园区
长沙临港产业开发区金龙智能制造产业园项目,是湘江集团在长沙临港产业开发区首个自主投资、开发、建设的产业项目,也是湘江新区产业转移、产业发展的重要载体。项目总占地125亩,总建面约10万方,总投资约5亿。项目分为两期开发,一期即将交付,产品涵盖双层轻钢、火车头轻钢、多层框架厂房及员工宿舍等配套设施,二期可提供私人定制化厂房服务,满足企业多种需求。
项目立足推动智能制造和装备制造等高端产业的发展,拟引入装备制造、新能源(储能)、绿色大健康、医疗设备、智能设备、精密制造、节能环保、航空航天等大规模企业。


▲实景图

▲实景图
【项目区位】中部首个国家级新区,先进制造高地
湖南湘江新区成立于2015年,是中部地区首个国家级新区。2021年7月,湘阴片区正式成为湘江新区成员,共享湘江新区政策,统筹规划编制、统筹产业布局、统筹项目准入、统筹重大基础设施建设、统筹要素保障和政策支持,统一考核评价。2024年7月15日长沙临港产业开发区正式获批,纳入省级产业园区管理序列,由湖南湘江新区管理委员会直接管理。
长沙临港产业开发区是湖南省委、省政府为落实‘三高四新’美好蓝图,依托建设虞公港打造的中部经济合作示范区,明确了以工程机械为主导产业、港航物流为特色产业的‘一主一特’产业定位。长沙临港产业开发区按照“一港双园”的格局布局开发,分为虞公港北区和金龙南区两大板块。“一港”指的是北面的虞公港,“双园”则包括虞公港产业园和金龙产业园。作为金龙片区产业升级的重要载体,金龙智能制造产业园重点围绕先进装备制造、节能环保、新能源(先进储能)产业,充分利用湘江新区研发资源优势,承接长沙产业外溢,将其打造成全省产业链延展与转移的先进制造业高地。

【交通动脉】长岳路网枢纽,执掌城市脉搏
金龙智能制造产业园位于湖南湘江新区长沙临港产业开发区,作为对接融入省会长沙、助推岳阳省域副中心建设的主阵地和桥头堡,区域内交通呈现五纵三横三轨一港,交通四通八达,距离长沙市中心城区仅40公里,便捷的交通网络为产业园打通了内外循环的通道,为企业的发展提供了有力支撑。

【产品业态规划】
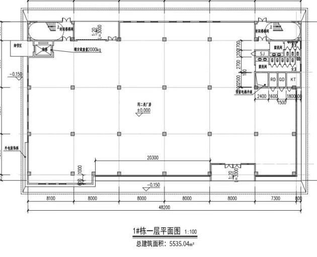
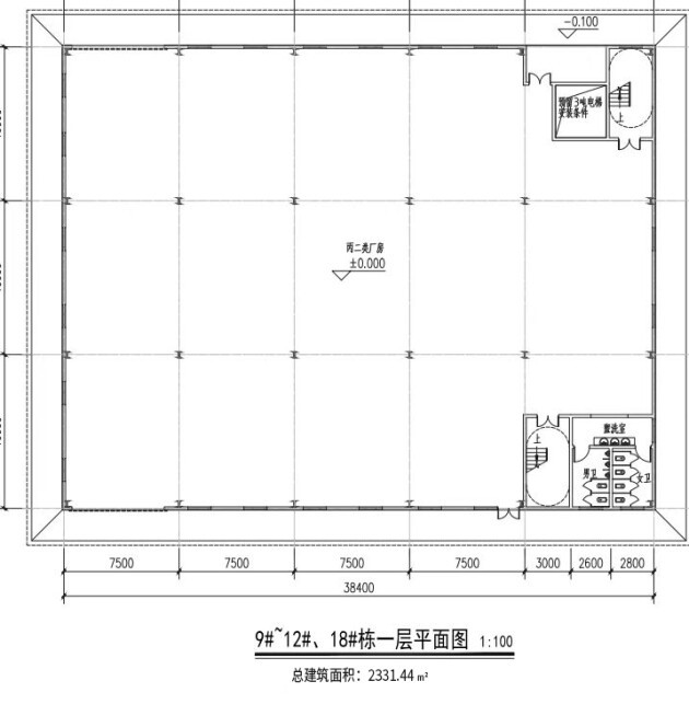
项目业态规划:项目一期规划14栋建筑,其中多层框架(4F)厂房3栋,火车头轻钢厂房4栋,双层轻钢厂房4栋,设备用房1栋,宿舍配套2栋(其中1栋宿舍含食堂)。
火车头轻钢厂房
总层数:1/3层
总面积:2300-4800㎡
层高:轻钢单层12m,框架每层4.5m

多层框架厂房
总层数:4层
总面积:4700-5600㎡
层高:首层7.8m,2~4层4.5m

双层轻钢厂房
总面积:2331.44㎡
层高:首层6米,二层6米

招商中心地址:长沙临港产业开发区芙蓉北路湖南中医药大学湘杏学院对面(湘江智造中心项目)

